福禄克Fluke 805ES测振仪外部振动传感器
福禄克Fluke BTL10表笔(适用BT508\510\520\521)
福禄克Fluke TL1550B测试线和鳄鱼夹 (红色、黑色、绿色,适用1550C/1555)
福禄克Fluke TL1550EXT测试夹(适用1550C/1555)
福禄克Fluke CV300ClirVu® 75 mm (3 in) 红外窗口
福禄克Fluke CV200ClirVu® 50 mm (2 in) 红外窗口
福禄克Fluke CV401ClirVu® 95 mm (4 in) 红外窗口
福禄克Fluke CV301ClirVu® 75 mm (3 in) 红外窗口
福禄克Fluke OptiFiber® Pro OTDR系列
福禄克Fluke CertiFiber®光纤损耗测试套件
福禄克Fluke SimpliFiber® Pro光功率计和光纤测试仪
福禄克Fluke Fiber QuickMap™多模光纤距离和故障定位仪
福禄克Fluke Fiber OneShot™ PRO光纤测试仪
福禄克Fluke VisiFault™ Visual Fault Locator电缆连通性测试仪
福禄克Fluke MultiFiber™ Pro光功率计及光纤测试工具包
福禄克Fluke FI-7000 FiberInspector™ Pro光纤显微摄像机
网络专业人士可利用NetAlly AirMagnet Survey PRO来设计、部署和验证802.11无线局域网,以实现最佳性能并确保网络安全和合规性。此外,AirMagnet Survey PRO还可计算出接入点的最佳数量、位置和配置,以实现成功的无线局域网部署。本解决方案不仅只是简单地验证射频覆盖,还能以可视化形式呈现连接速度、吞吐量和数据包统计信息方面的实际最终用户网络性能。Survey Pro还可帮助您确保在第一次就正确安装Wi-Fi设备,从而避免代价高昂的返工和用户投诉。
无需实际部署任何接入点即可规划和设计WLAN网络
通过使用任何Wi-Fi适配器执行真正的最终用户体验测量,收集真实的数据
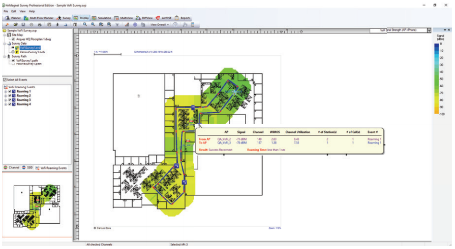
生成有助于您全面了解WLAN覆盖率、干扰、吞吐量、数据速率、重试次数、损耗、无线语音质量评测等信息的热图
在一次现场步行勘查中执行并完成主动、被动和频谱测试,大大地节省时间
802.11 现场勘察
NetAlly AirMagnet Survey是一种无线网络部署解决方案,可让用户使用任何802.11适配器来测量和评估真正的无线网络最终用户体验。在考虑MIMO和其他环境条件 / 网络配置的情况下,AirMagnet Survey不仅能够验证射频覆盖率,还可根据吞吐量和PHY数据速率以可视化形式呈现实际最终用户网络性能。本无线站点勘察解决方案可显示影响性能的特定802.11参数的覆盖范围,如更高的MCS方案和更宽的信道,以及干扰源的入侵或旧设备的影响。结果显示为一份涵盖所有重要射频和最终用户性能指标的完整Wi-Fi“气象图”。“实际”测量的结果使IT人员从一开始就能够准确设计和部署WLAN。从而有助于企业节省时间和费用,减少最终用户网络投诉,减少代价高昂的网络重新设计。


与AirMagnet Planner无缝集成
AirMagnet Planner是AirMagnet Survey PRO的组成部分,可提供一个无缝应用程序,作为业界802.11a/b/g/n/ac无线局域网设计、部署和持续优化的最完整方法之一。利用这个集成解决方案,用户可先使用AirMagnet Planner对建筑结构材料/障碍物和802.11接入点进行建模,通过可视化图形呈现多楼层的覆盖范围以准确地设计WLAN,然后再使用AirMagnet Survey PRO中的真实数据对结果进行验证。通过使用实时的最终用户性能指标,用户可随着时间的推移进一步完善自己的规划模型。
用户还可以根据AirWISE®引擎的设计要求进行网络规划测试,从而获得其他规划功能。AirMagnet Planner还可与AirMagnet Survey Express集成。

户外无线站点勘察
借助GPS支持以及通过与Google Earth集成,AirMagnet Survey PRO可进行完全自动的户外无线站点勘察。用户可利用符合NMEA规定的GPS设备自动收集户外无线数据,还可以导入全球任何城市的街道地图,然后选择在AirMagnet Survey用户界面中分析结果,或将结果导入Google Earth,以放大显示城市中的任何街道。

“真实”勘察数据的收集以及模拟“假设”情况的解决方案
AirMagnet Survey具备同步无线站点勘察功能,该功能可利用插入同一电脑的多个适配器向用户提供模拟真实客户端特性的解决方案(使用主动和iPerf勘察)。使用精确的无线模拟工具可减少站点勘察时间和精力投入,削减一半成本,且用户只需进行一次现场勘察即可收集到全部所需数据。
利用这款无线802.11站点勘察工具,用户可创建“假设”情况,以模拟网络的各种变化,同时预览所受到的影响。用户可选择改变接入点发射功率、信道、SSID设置,以及添加环境噪声。用户还可以模拟移动接入点至新场所,并预览添加其他接入点的效果。AirMagnet Survey使用户可以选择为接入点制定一个可以避免干扰和过度部署的自动信道计划。


射频频谱和无线局域网语音勘察
做任何设计和部署决策之前,用户可考虑非 Wi-Fi 设备的射频干扰。AirMagnet Spectrum XT用户可在单次勘察中收集到Wi-Fi和频谱分析数据,并将数据集成至AirMagnet Survey中。通过这样的集成,用户可在任意位置查看射频能量,并识别/显示干扰WLAN的非802.11设备。
AirMagnet Survey可应对网络安装人员和IT员工在部署VoWLAN网络时面临的挑战。利用内置的语音验证系统,AirMagnet Survey用户可确保其网络设计符合电话供应商的建议。此系统让用户通过验证和在楼层示意图上每个位置绘制电话通话质量、容量以及其他语音参数的方式执行真实的语音勘察,从而有助于识别和最大限度地减少问题。

验证用户和应用要求
AirWISE®引擎允许用户设置无线网络设计/应用要求,如信号覆盖范围、无线网络吞吐量、PHY数据速率、802.11特定参数等,以帮助识别任何范畴的问题。设置之后,系统就会提示用户楼层示意图上的区域是否符合要求,如果不符合要求,用户就可以采取必要的措施来解决覆盖范围、性能或容量问题。
用户可通过AirWISE创建基于真实勘察数据或无线网络建模数据的标准, 这些标准可用于验证 WLAN 部署是否能支持各种应用的运行。
通过避免代价高昂的WLAN网络重新设计,这种一键式 WLAN 网络评估有助于节省时间、精力和费用,同时可最大限度地减少IT故障排查成本。用户可生成一个通过/失败报告,从而以有效的方式将勘察结果提供给安装人员或最终客户。

专业自定义报告
AirMagnet Survey PRO包含一个完全集成的报告模块,可即时创建站点勘察和各种模拟情况的自定义报告。自定义模板可使无线802.11站点勘察用户根据项目要求灵活地创建各种报告。用户还可以对报告进一步定制,比如包含/排除一些部分、添加备注以及自定义标识、页眉和页脚等其他可自定义选项。报告可保存为多种格式,如PDF、XML、HTML、Excel或Word。
报告模块包括使用下列语言的报告模板:英语、德语、法语、阿拉伯语、俄语和日语,同时还允许用户使用任何其他语言创建模板。

通过图像呈现随着时间变化的覆盖范围和性能差异
Wi-Fi环境的变化非常动态,为确保向最终用户提供最佳性能,必须能够检查网络覆盖范围和性能的变化。AirMagnet Survey的差异视图功能可并排显示两次单独勘察之间的差异。
差异视图功能有助于显示站点的无线环境是如何随着时间变化的。对于系统集成商来说是非常好的工具,为客户持续验证网络覆盖范围和性能可以不断地带来新的生意机会。
同样地,用户可以使用这一功能快速比较AirMagnet Planner结果与实际站点勘察结果。随后,可将比较后得出的信息用于调整Planner中建筑和环境条件的db损失,以实现更精确的规划。

与WLAN基础设施供应商的集成
AirMagnet Survey可将真实的勘察数据导出至Cisco Prime。这对校准Cisco内置规划程序建模功能和专业应用都非常重要。例如,为最大限度提高WLAN客户端的定位精度而强制进行校准站点勘察的定位服务,或标签,以及建议使用站点勘察验证真实数据与基础设施预测能力VoWLAN服务。
通过创建规划项目并将其直接导出至Cisco Prime,可充分利用AirMagnet Survey PRO中内置的规划功能优势。这一集成避免了在Cisco Prime中重复执行这些任务,从而节省了用户在设置地图、接入点放置位置和其他WLAN部署建模活动时的时间和资源。

系统要求
笔记本电脑/上网本/平板电脑
操作系统:Microsoft® Windows 7 Enterprise/Professional/Ultimate或64位Microsoft Windows 8 Pro/Enterprise、64位Microsoft Windows 8.1Pro/Enterprise或64位Microsoft Windows 10 Pro/Enterprise
Intel® Core™ 2 Duo 2.00 GHz(建议使用Intel® Core™ i5或更高版本)
4 GB或更高
800 MB可用硬盘空间
ExpressCard插槽或USB端口,使用多个适配器时,电脑中需配备多个端口。AirMagnet建议使用其多适配器套件。
AirMagnet支持的无线网络适配器
选配AirMagnet Spectrum XT适配器和许可证(用于查看频谱数据和热图;仅限Survey PRO)
站点地图,采用AirMagnet Survey支持的格式(支持的格式有:.bmp、.dib、.dwg、.dxf、.emf、.gif、vsd、.jpg、.wmf、.vdx或.png)
支持的GPS设备。以下为获批能够与AirMagnet Survey产品一起使用的GPS设备列表:
Garmin eTrex LEGEND HCx
Garmin eTrex
Garmin eTrex Legend
Garmin GPS18X USB
Garmin GPS 18 Deluxe
Microso GPS-500 SIRF III
DeLorme Earthmate GPS LT-20
Magellan eXplorist 500
Pharos iGPS-180
US GlobalSat BU-353-S4(建议)
Apple Macbook PRO
操作系统:使用 Boot Camp® 运行受支持的Windows操作系统的MAC OS X v10.5 (Leopard™)或更高版本(如“笔记本电脑/上网本/平板电脑”一节中所述)
基于Intel®的CPU 1.6 GHz或更高版本
4 GB或更高
800 MB可用硬盘空间
USB 端口,使用多个适配器时需多个端口AirMagnet建议使用其多适配器套件。
AirMagnet支持的无线网络适配器
选配AirMagnet Spectrum XT适配器和许可证(用于查看频谱数据和热图;仅限Survey PRO)
站点地图,采用AirMagnet Survey支持的格式(支持的格式有:.bmp、.dib、.dwg、.dxf、.emf、.gif、vsd、.jpg、.wmf、.vdx或.png)
必须安装Google Earth,以便将用于户外勘察的GPS数据导出至Google Earth(仅限Survey PRO)
支持的 GPS 设备。以下为获批能够与AirMagnet Survey产品一起使用的GPS设备列表:
Garmin eTrex LEGEND HCx、Garmin eTrex、Garmin eTrex Legend、Garmin GPS 18 Deluxe
Garmin GPS18X USB
Microso GPS-500 SIRF III
Garmin GPSMap 60
DeLorme Earthmate GPS LT-2、DeLorme Earthmate GPS LT-40
Magellan eXplorist 500
Pharos iGPS-180
US GlobalSat BU-353-S4(建议)
支持的适配器
AirMagnet Survey支持两种类型的无线适配器:
推荐适配器:AirMagnet已对这些适配器进行了全面测试,并建议将其与AirMagnet Survey PRO一起使用。驱动程序已针对扩展功能支持进行了定制。
其他适配器:这些适配器可与AirMagnet Survey PRO一起使用,但AirMagnet并未对其进行测试。驱动程序未进行定制,提供有限功能,且提供的数据可能不正确。
AM/A4018
AIRMAGNET SURVEY PRO 无线网络勘测软件(含 Planner 无线规划功能)(实物版)
AM/B4010
AirMagnet Survey Express
AM/A4016G
AIRMAGNET Survey Express 版至 Pro 版升级选件(无实物版)
AM/B4070
AIRMAGNET Spectrum XT 频谱分析软件 ( 包含一块专用网卡)
AM/D1095
无线适配器网卡套装(包括 2 块 D1080 AC USB 网卡,和 1 个 USB Hub)
AM/A1480
AIRMAGNET 无线设计与分析软件组合包(含 WiFi Analyzer、Survey、XT)
AM/A1580
AirMaget Survey Pro 与 Spectrum XT 组合包
AM/A1481
AIRMAGNET WiFi 无线网络分析与勘查软件组合包(实物版)
Copyright© 1998-2023深圳市连讯达电子技术开发有限公司 All Rights Reserved .
地址:深圳市福田区华强北路华联发大厦720室 客服:400-966-0787
备案号:
粤ICP备18089363号
网站地图
免责声明:福禄克、FLUKE、FLUKE NETWORKS、 NETALLY等品牌资料及图片摘自网络,连讯公司不拥有以上品牌商标及相关产品著作权。